2021
HAM film
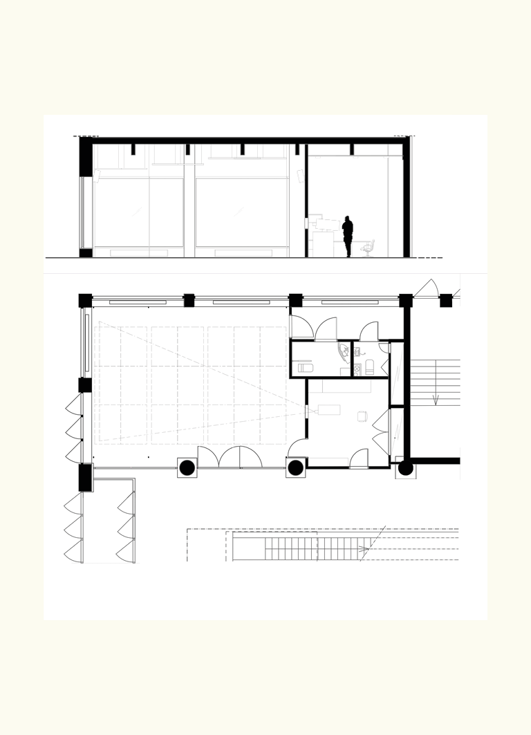
graphic design, space design and cultural programme proposal for a new film projection space at the HAM museum of contemporary art in Finland.
Inspired by the stickers used by the museum as admission tickets.
With Esther Bouhadana
graphic design, space design and cultural programme proposal for a new film projection space at the HAM museum of contemporary art in Finland.
Inspired by the stickers used by the museum as admission tickets.
With Esther Bouhadana










